こんにちは!土地建物の売買を担当しております、多古本店・営業の村田と申します🙂↕️
今回は年末大サービス!!
これから販売予定のマル秘物件の情報です👌
〜都心から少し離れて、波音と緑に囲まれたスローライフを〜
場所は、移住者増加中の【千葉県いすみ市】です🍀
海の気配を感じるのびのびとした環境に🏝️お庭が主役の、遊びの家🏝️
土地面積は約802㎡(約242坪)もある、広〜いお庭が自慢の木造平屋です🏡🌳
大きな空と深い緑、そして海の香り。こんな贅沢な日常が、ここにはあります!
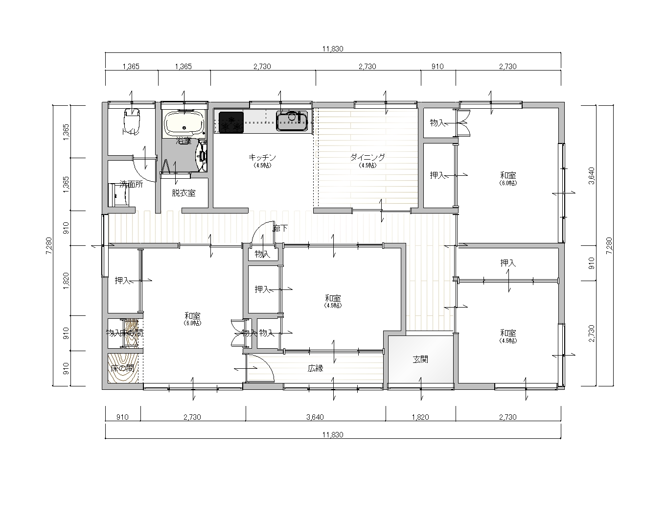
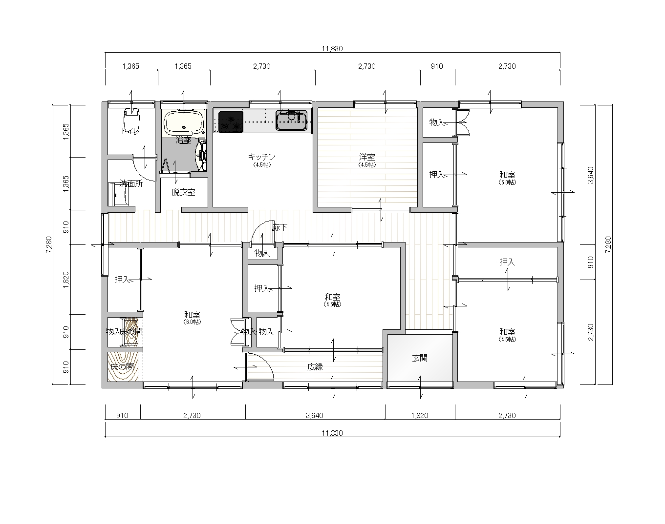
物件概要
- 所在地:千葉県いすみ市日在2344番
- 価格:1,790万円
- 土地面積:約802㎡(約242坪)
- 建物面積:85.85㎡(約25.97坪)
- 構造:木造平屋
- 用途:居住用、別荘、民泊、法人寮(ご相談可)などなど🍀
- 間取り図は画像をご参照ください。詳細は順次公開予定です😊
海へもすぐにアクセスでき、自然豊かな環境でリラックスした生活を楽しめます。
特に広い庭は、お子様やペットとの遊び場として👌
またガーデニングを楽しむ場所としてのご活用など、夢が広がるお家です❤️
これからホームページでも、新しい情報を発信させていただきますので、
ご興味ある方には現地の動画等、詳細をお送りいたします🙂↕️
この場所で始まる✨新しい暮らしのイメージを一緒に膨らませていけたら嬉しいです!
最後までお読みいただき、ありがとうございました☺️


コメント